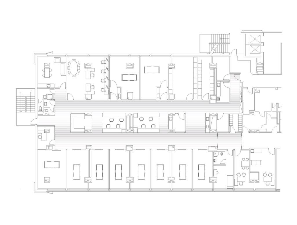
Unidades hospitalarias
Ocupará un ala destinada actualmente a hospitalización. El proyecto parte de la creación de un núcleo central de actividad en el que se sitúan los boxes de tratamiento junto a los cerramientos exteriores y una zona central de control y unidades auxiliares alrededor de la cual se realizan las circulaciones de acceso a los boxes.
En los extremos del ala se sitúan las zonas de trabajo y almacenes y servicios. Los accesos a la UCI se realizarán de manera diferenciada, por un lado pacientes y familiares y por otro almacenamiento y servicios.
Contempla un total de 10 boxes de atención a pacientes, de los cuales dos son de aislamiento.
La superficie de la intervención es de 709.28 m2 y el coste previsto es de 2.331.226 euros.
Pendiente de ejecución
Unidad de Cuidados Intensivos
Hospital Universitario Materno-Infantil Miguel Servet de Zaragoza
Unidad de hospitalización psiquiátrica breve
Hospital Miguel Servet de Zaragoza
Proyecto de ejecución y dirección de obra de remodelación de un ala del Hospital Miguel Servet para la instalación de la nueva Unidad de Hospitalización Psiquiátrica Breve.
Se trata de un proyecto muy exigente por las condiciones de los pacientes, que obliga a un especial cuidado en la selección de materiales, sistemas e instalaciones. La dirección de obra supuso otro reto, al realizarse las obras sin interrupción de uso tanto en las plantas situadas en la vertical de la zona como en los accesos a la misma.
La superficie de la actuación es de 1.336 m2 y el presupuesto de contrata ascendió a la cantidad de 2.134.406 euros.
Proyecto de ejecución de la nueva Unidad de Farmacia Hospitalaria del Hospital Miguel Servet.
La intervención incluye la remodelación integral de los espacios ocupados por diversas unidades del hospital, incluyendo los correspondientes a la propia Farmacia, suponiendo una superficie a remodelar en la planta de 2.503 m2, a los que se suma una intervención en la zona de instalaciones del hospital de 480 m2 mas, con un presupuesto de contrata de 3.153.752 euros.
Pendiente de ejecución.
Unidad de farmacia hospitalaria
Hospital Miguel Servet de Zaragoza
Hospital de día
Hospital Miguel Servet de Zaragoza
Proyecto de ejecución de un nuevo Hospital de Día Oncológico y Oncohematológico en el Hospital Miguel Servet ocupando zonas sin uso donde se encontraba el Servicio de Urgencias hasta su traslado. Esta ubicación proporciona una extraordinaria accesibilidad y comunicación tanto con el exterior como con el propio Hospital.
La superficie de actuación es de 1.950 m2 en planta baja mas 350 m2 en la zona de instalaciones del Hospital. Su presupuesto de contrata es de 2.853.052 euros y está pendiente de ejecución.
Proyecto de ejecución y dirección de Remodelación de Salas de Radiología
en el Hospital Clínico Universitario Lozano Blesa de Zaragoza.
En la zona ocupada por una sala de Hemodinámica y otra de Radiología Intervencionista, se plantea una reforma de los espacios para la introducción de una nueva sala de Radiología Intervencionista, situada junto a la existente y de forma que se compartan los espacios sirvientes de ambas: accesos, espera, controles,
descanso et.
La resolución de este puzle se convierte en el reto de esta actuación, debido a la imposibilidad de obtener nuevos espacios en las unidades colindantes.
La superficie de la intervención es de 529 m2 y el coste final de adecuación de
los locales ascendió a 1.034.588,17 euros.
Los trabajos finalizaron el año 2023.
Remodelación de Salas de Radiología
Hospital Clínico Universitario Lozano Blesa de Zaragoza.
Proyecto de ejecución y dirección de Instalación de Acelerador de Partículas en el Hospital Miguel Servet de Zaragoza.
Ubicado en la planta -1 del Hospital (planta baja respecto de la calle), ocupando espacios sin uso actual que estuvieron destinados a antiguos equipos de radiología, consultas, almacenes…
La intervención supuso ampliar las protecciones radiológicas tanto respecto de la calle como de otros locales interiores y la planta superior, que queda inutilizada en la zona situada sobre el nuevo Acelerador.
La superficie de la intervención es de 152 m2 y el coste final de adecuación de los locales ascendió a 600.149 euros.
Los trabajos finalizaron el año 2020.
Acelerador de Partículas
Hospital Miguel Servet de Zaragoza
Resonancia Magnética
Hospital San Jorge de Huesca
Proyecto de ejecución y dirección de Resonancia Magnética en el Hospital
San Jorge de Huesca.
La actuación formaba parte de un plan que comprendía la ampliación del Hospital con una nueva Unidad de Urgencias en la zona ocupada por el aparcamiento.
La intervención contemplaba la reforma de una serie de locales situados en edificio del hospital, en el paso hacia la ampliación, que estaban siendo utilizados como almacenes y vestuarios.
Finalmente se desligó la actuación para la Resonancia de la intervención de las
nuevas urgencias con el fin de acometer con la máxima rapidez la creación de este servicio del que carecía este sector sanitario.
La superficie de la intervención es de 200 m2 y el coste final ascendió a 405.583 euros.
Los trabajos se realizaron el año 2019.
Proyecto básico de reforma de la Unidad de Hemodiálisis del Hospital Ernest Lluch de Calatayud (Zaragoza).
Planteado en la zona ocupada actualmente por hemodiálisis ampliada con espacios administrativos ajenos dentro de un contenedor lineal en el que se realiza la diferenciación de las zonas de atención externa, tratamiento y servicios accesorios.
Los sistemas empleados deber permitir la mínima duración de los trabajos de reforma puesto que la atención a pacientes se interrumpe en este periodo.
La superficie de la intervención es de 654.20 m2 y el coste previsto es de 906.748.11 euros.
Pendiente de ejecución
Unidad de Hemodiálisis
Hospital Ernest Lluch de Calatayud (Zaragoza)
Ascensor Exterior
Hospital Miguel Servet de Zaragoza
Proyecto de ejecución y dirección de obra de Ascensor Exterior en el Hospital Miguel Servet de Zaragoza.
El acceso principal de este Hospital, el mayor de la Comunidad, está situado en planta primera respecto de la calle.
El acceso se realizaba mediante escaleras y rampa que no cumplía la Normativa.
Se habilita un ascensor exterior accesible que comunica directamente la calle en planta baja con el vestíbulo de planta primera aprovechando el espacio entre la rampa y el propio edificio.
La intervención debe realizarse sin ninguna afección ni alteración del acceso habitual al edificio.
Obra realizada en el año 2017.
