Comisaria de la Policía Nacional en Vitoria
Proyecto de ejecución para la nueva Comisaría Provincial de la Policía Nacional en Vitoria.
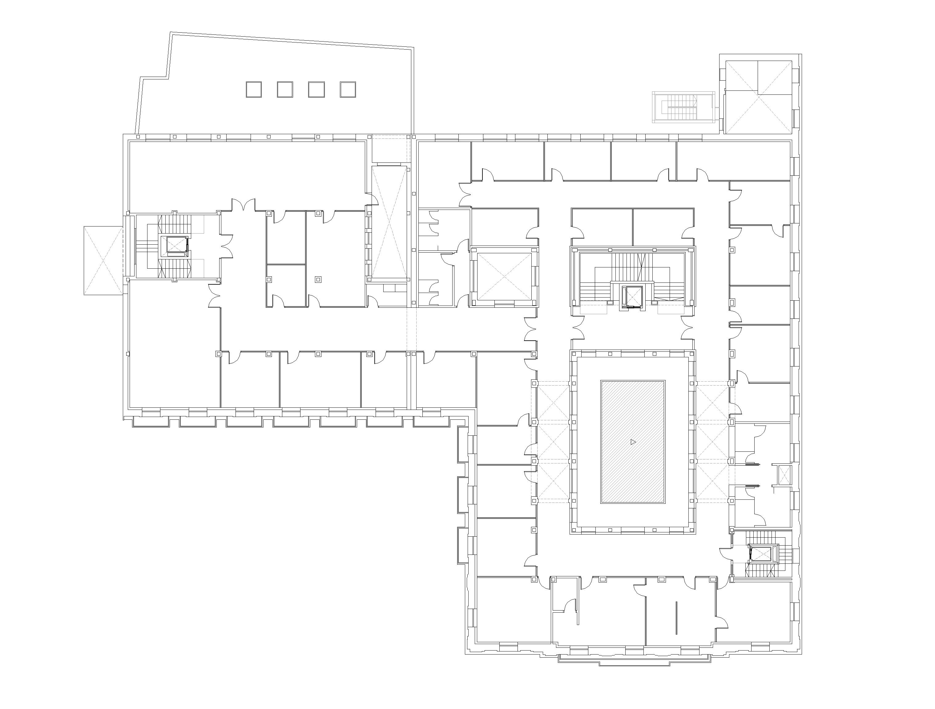
La intervención se desarrolla sobre dos edificios construidos en 1950, situados en el tejido urbano consolidado de la ciudad. Uno de ellos continúa en uso como comisaría, mientras que el segundo, de mayor escala y antiguo Palacio de Justicia, se encuentra actualmente en desuso y presenta un avanzado estado de deterioro, especialmente en sus espacios interiores.
Ubicación Vitoria-Gasteiz
Estado Finalizado
Servicio Arquitectura
Sector Institucional
Superficie 7.909 m²
Cliente Ministerio del Interior
Presupuesto licitación 8.702.189,03 €
Los edificios, de cuatro plantas sobre rasante, entrecubierta y sótano, cuentan con protección urbanística en lo relativo a fachadas y estructura.
La intervención debe garantizar la continuidad del funcionamiento de la comisaría, lo que implica una ejecución en dos fases. En una primera etapa se habilitan los nuevos espacios para el traslado de la actividad, permitiendo posteriormente abordar la rehabilitación de las áreas actualmente en uso.
De este modo, la propuesta se articula en dos líneas principales:
- El refuerzo de la estructura existente, que presenta un avanzado estado de deterioro y una limitada capacidad portante.
- La definición de una solución funcional que permita la ejecución en dos fases diferenciadas, asegurando la continuidad de los servicios durante todo el proceso.
La superficie total de la actuación es de 7909,23m2 y el presupuesto base de licitación sin IVA ascendió a 8.702.189,03 euros.
