Comisaria de la Policía Nacional en Soria
Proyecto de ejecución para la nueva Comisaría Provincial de la Policía Nacional en Soria.
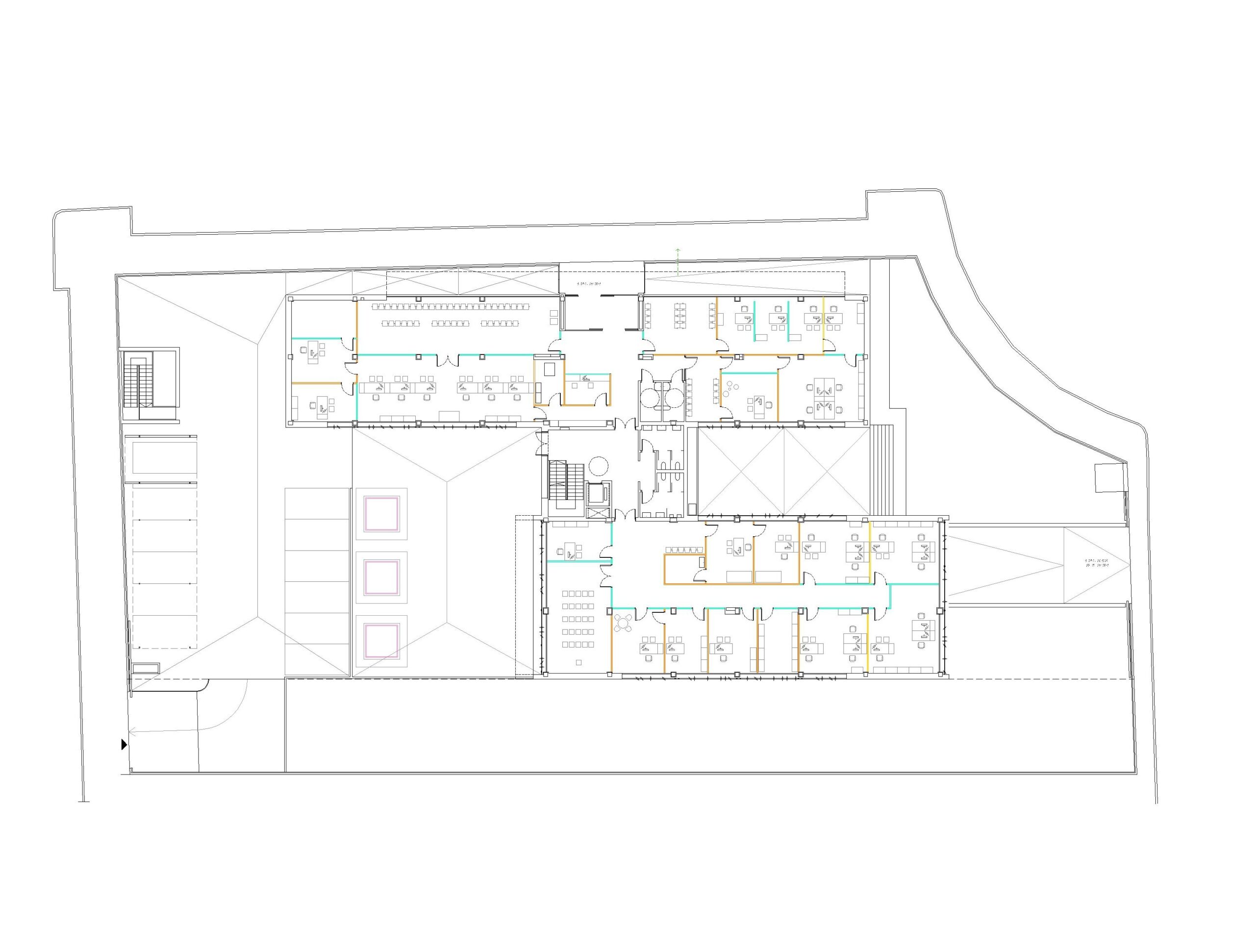
Se trata de un edificio de carácter fundamentalmente administrativo, ubicado en un entorno de nueva urbanización, sin condicionantes arquitectónicos o urbanos relevantes que determinen el planteamiento del proyecto.
La propuesta busca configurar un edificio abierto y amable, tanto en su relación con el exterior como en la calidad de sus espacios interiores. La iluminación natural y el adecuado soleamiento se convierten en aspectos clave para garantizar condiciones de trabajo confortables y luminosas.
Ubicación Soria
Estado Finalizado
Servicio Arquitectura
Sector Institucional
Superficie 5.442 m²
Cliente Ministerio del Interior
Presupuesto licitación 6.215.735,96 €
La propuesta se organiza en tres volúmenes principales:
- Primer bloque, situado junto a la calle y con dos plantas de altura, que alberga las áreas de atención al público, así como los espacios de dirección y representación.
- Segundo bloque, más alejado y con mayor grado de privacidad, destinado a las áreas de trabajo interno de la comisaría, desarrollado en cuatro plantas sobre rasante.
- Tercer volumen, que actúa como nexo entre ambos y contiene los núcleos de comunicación y espacios de servicio.
Los dos bloques principales se conciben con un carácter monolítico, mediante una envolvente de fachada ventilada de piedra, donde el uso interior se expresa a través de la disposición de los huecos.
El volumen de conexión se diferencia mediante un revestimiento continuo de chapa de zinc, perforado puntualmente para permitir la entrada de luz y ventilación.
